J-ARCHITECT
JAKUETS Architectural Design Magazine
Vol.30
まちと子ども、過去と未来をつなぐ園舎
学校法人 羽田学園 幼稚園型認定こども園 千葉さざなみ幼稚園

まちに開いた見晴台のような場所となっている。
千葉県千葉市、東京湾に面した稲毛海岸の埋め立て地である高洲に建つ千葉さざなみ幼稚園。開園50年を節目に園舎を建て替えました。園の50年間はそのまま高洲の記憶でもあります。海だった場所と園の歩みを次世代に伝えながら、未来に応えられる新園舎を目指しました。
場所と園の記憶の継承をテーマに
かつて海だった場所に建つ千葉さざなみ幼稚園。昭和46年(1971年)、稲毛海岸の埋め立て地に開園しました。平成29年(2017年)には幼稚園型認定こども園に移行しましたが、創立以来大切にしてきた幼稚園の良さを積極的に活かした運営を行っています。園舎は増築、修繕を重ねながら愛着を持って使われてきましたが、老朽化とこども園化による使い勝手の変化から開園50年事業として建替えが実施され、令和6年(2024年)に新園舎が完成しました。既存の遊戯棟だけ残し、旧園舎で保育を続けながら、園庭だった場所に新園舎を建て、新園舎が竣工してから旧園舎を壊して新園庭を整備しました。
建替えのテーマとなったのは、この場所と園の記憶の継承です。ニュータウンという地域の要請に応えて誕生し、まちと共に歩んできた幼稚園として、往時の佇まいを感じられる園舎を次の世代へ渡したいという思いが込められています。そして、建替えによって広くなった園庭を活かして、思いっきり走れる園舎にという要望がありました。
そこで、稲毛海岸の原風景や旧園舎のありようを落とし込んだ、外も内もたっぷり走り回れるプランが練られました。
建物は、周辺環境に合わせて高さを抑えた2階建とし、回りにはぐるっと遊歩道を配しました。園庭には、ブランコや鉄棒などの遊具や築山に加え、2階のテラスからかけられた桟橋につづく六角デッキを設けました。上部はネット遊具、下は砂場で、六角形は旧園舎の六角形の分棟からとった形です。
そして園庭の中央と外周に、トラックを2重に設けました。外側のトラックは長距離走用で、毎年行っているマラソン大会では遊歩道と合わせてマラソンコースとなります。旧園舎でのマラソン大会は外の公道を使っていたので安全面では不安がありましたが、このトラックと遊歩道によって園内でマラソン大会を安全に行うことができるようになりました。

右の赤い屋根は既存の遊戯棟。広い園庭を挟んで、トップライトのある新園舎が建つ。

分棟だった旧園舎の面影を各所に表現
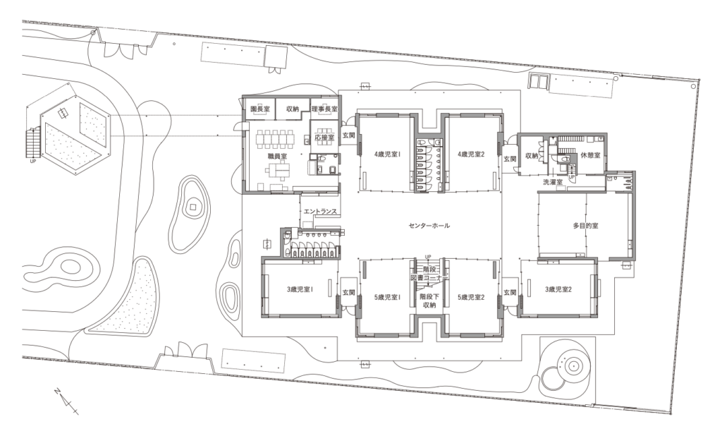
2階建ての園舎は、保育室はすべて1階に置いて平屋のような使い勝手の良さを考えました。長方形ではない、ちょっと入り組んだ平面は、分棟で構成されていた旧園舎の佇まいを踏襲した表現で、保育室の合間を凹ませて玄関を設け、いずれの保育室も隣にある玄関から出入りするプランとしました。
中央に配置した吹抜けの広いセンターホールは内部の園庭、その回りに配した各保育室が分棟のイメージです。そして、玄関回りの軒下には、登降園時の待合や外遊びの憩いの場となるベンチを造作しました。ベンチも旧園舎の各分棟の玄関で階段に座ってお迎えを待っていた風景をオマージュしたものです。
また、トップライトも、旧園舎の分棟の間から見えた空の美しさや光を、新園舎にも取り入れたいという意図で設けました。日時計のように日々の天候から季節の移ろいまで伝える、自然を感じさせる窓となっています。
保育室は、3歳児、4歳児、5歳児の各2クラスと多目的室を設けました。各保育室のホール側の引き戸は全開放できるので、センターホールとつなげて一体に使うことも可能です。多目的室は、預かり保育や3歳未満児の受け入れなどにも対応できるよう2室に分けられるつくりにして専用の玄関も設けました。ここもホール側の引き戸を全開できるようにしています。
さらに、その前のスペースには照明やバトンなどを設えて、イベントなどのステージとしても使えるようにしました。分棟の要素をちりばめながら、各室のホール側の引き戸を開け放てば、1階がほぼ一体の大空間となるプランになっています。

入り組んだ建物は、いくつかの棟が連なるかのように見える。

外遊びの憩いの場になったり、登園時は保護者同志の交流の場になったり、降園時はお迎えの待合ともなる。

上のネット遊具部分は板を載せられるようにし、運動会など行事の時は本部席や撮影スペースとして活用している。

トップライトからの光が拡散し、晴れの日は照明を付けなくても明るい。
左奥が多目的室、階段の両隣が5歳児保育室。

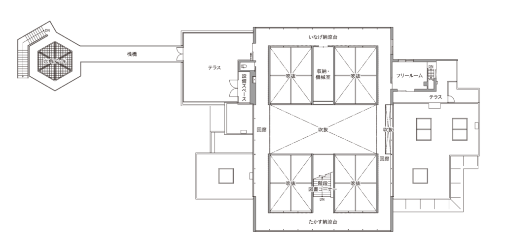
センターホールの南側と北側に配置した4歳児と5歳児の保育室は吹抜けとなっていて、2階の納涼台から見下ろせる。
無限に走り回れる、
まちと子どもをつなぐ空間
センターホールの南側には、波形の本棚を設えた大階段があります。図書コーナーでもある階段を上がった2階は、吹抜け空間を囲むロの字型の回廊で、無限に走り回ることができる園内のトラックとも言える空間です。この回廊からはセンターホールと4歳児と5歳児の保育室を見下ろすことができ、センターホールでのイベント時には観覧席ともなります。
そして、南側と北側には納涼台と名付けられた、まちを見渡せる全面ガラスの開放的な空間が広がっています。納涼台とは埋め立て前の稲毛海岸に点在した海の家のことで、海だった場所であることを伝えるネーミングであり、現在の高洲のまちと子ども達をつなぐ見晴台としての意味もあります。
北側のいなげ納涼台からテラスへ出るとその先には桟橋がかかり、六角デッキへと続きます。夏、テラスはプールを置いて水遊びの場所となり、まさしく納涼台=海の家から海へ入っていくイメージです。
南北をつなぐ回廊の壁は、オレンジやブルーをグラデーションで彩り、朝焼けや夕焼けなど空や海といった自然が移りゆく様を表現しました。インテリアは全体的に飽きのこないベーシックな色合いを選び、床や建具や格子は木材を用いて温かみを与えながら、サインなどの差し色には海をイメージした水色を用いています。内部空間においても、場所性や旧園舎に関連する表現を様々に取り入れました。
高洲という地域で園が積み重ねてきた年月と記憶。それをたどることができる園舎は、内も外も行き止まりなく走り回れる、他園にはない唯一の空間となりました。

本を読むことはもちろん、異年齢児間のコミュニケーションの場ともなっている。

アクリル製で取り外しができる。
クラス名は海にちなんだ生き物が付けられている。

まちに開いた、大きな空が広がる気持ちのいい空間で、子ども達は思い思いに過ごしている。


回廊、納涼台は吹抜けを囲んでロの字に設けられていて、行き止まりなく走り回れる。

防犯にも一役買うランドマーク的な建物となっている。
平面図1/400


DATA 学校法人 羽田学園 幼稚園型認定こども園「千葉さざなみ幼稚園」
| 所在地 | 千葉県千葉市美浜区高洲1-1-33 |
| 主要用途 | 幼稚園型認定こども園 |
| 定員 | 120名 |
| 竣工 | 2024年12月 |
| …… | |
| 構造 | 鉄骨造2階建て |
| 敷地面積 | 5031.40㎡ |
| 建築面積 | 1445.19㎡ |
| 延床面積 | 1504.18㎡ |
IMPRESSION ─建設を終えて
学校法人 羽田学園 幼稚園型認定こども園
千葉さざなみ幼稚園
理事長 羽田政幸氏

一歩先ゆく、踏み込んだ提案が心強かったです
当園は、昭和46年(1971年)にこの地で創立しました。ここ高洲は遠浅だった稲毛海岸の埋立地で、当時、団地などの建設が盛んに行われて、急速に人口増加していた地域の要請に応えて開園しました。保育もすぐに始め、その時代時代のニーズに対応しながら、平成29年(2017年)に幼稚園型認定こども園に移行しました。園舎は、初期の園舎に増築、修繕を重ねてきたのですが、耐震強度の不安や老朽化など様々な問題が生じてきたため、開園50年事業として園舎の建替えを決めました。
ジャクエツさんとは創立以来の長いおつきあいで、旧園庭では遊具もジャクエツさんのものをメンテナンスしながら40年近く使っていました。建替えを考え始めた時も、ジャクエツさんが運営する園を福井へ見学にも行きました。
建替えをジャクエツさんに依頼した理由としては、私達が考えていることの一歩先を常に提案してくれたことが大きかったですね。建替えなど初めての経験の私達にとっては心強かったです。大規模事業ですから入札には数社参加いただいたのですが、ジャクエツさんは設計プランだけでなく、補助金活用など建替え事業全般に渡る対策まで提案してくれました。
少子化が進み、当園でも園児数が激減した時期でもあって、それも含めて一緒に考えてくれました。そこまで踏み込んで考えてくれたのはジャクエツさんだけで、とても頼りになりました。
設計段階では、園舎にこの場所に関わる事柄を取り入れて欲しいとお願いしました。園名に「さざなみ」、園章に「千鳥」と海だった場所に関連付けている園でもありますし、私自身がこの地で育ち、埋め立て前の記憶がかろうじて残っている世代なので、建物にも何かしら当時の原風景のようなものを残して次の世代にバトンを渡したいと考えたからです。また、広い敷地を活かして他の幼稚園にはない、子ども達が思い切り走れる園にして欲しいとも要望しました。
建物が完成してから1年が経ちましたが、だいたい考えていたことはできたかなと思います。まだ活かしきれていないところもありますが、やってみないとわからないことが当然あるので、そこはやりながらですね。駐車場回りの整備はこれからなので、まだ終わりではありません。社会のニーズもどんどん変わっていきますし、まだまだ終わりなきチャレンジですね。
JAKUETS
設計士 東京設計事務所 建築設計課 青柳大祐

新しい園舎は使いやすさだけでなく、文化を伝え地域への愛着を育む場となることを目指し、先生方と共に同じ方向を向いて設計を進めることができました。子ども達や先生方、保護者の方々が日常的に納涼台や六角デッキという言葉を口にしている姿を見ると嬉しい気持ちになります。
設計士 東京設計事務所 建築設計課 小谷野 友里

分棟建物の旧園舎が持つ特徴的な風景や、この土地ならではの歴史、魅力が引き立つような園舎を目指しました。子ども達だけでなく先生方、保護者の方々が、過去の記憶を継承しながら、新しい記憶を重ねていける園舎であり続けて欲しいと思います。
ディレクター 東京西部店(担当時、千葉店) 西村厚志
理事長先生に福井本社まで足を運んでいただいた当時の千葉店店長に、完成した新園舎を見ていただけた時には、バトンを繋ぐことがかなったのかなと感慨もひとしおでした。近年さらに開発が進み変わりゆく美浜の地で、この新園舎でこれからも園の歴史を紡いでゆかれることを願ってやみません。
2025年 7月発行
発行:株式会社ジャクエツ
A2075-0700-11079



